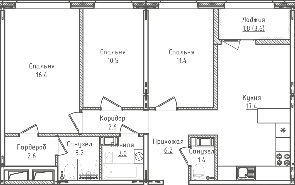
Трехкомнатная квартира №30 с видом двор. 4 этаж. Подъезд 1
3-комн. 76,50 м2
3 квартал 2029
Проект
Галактика
Корпус
Подъезд 1
Количество комнат
3
Этаж
4 из 9
Номер квартиры
30
Общая площадь (м2)
76,50
Площадь без лоджии и балкона (м2)
74,70
Жилая площадь (м2)
38,30
Площадь кухни (м2)
17,40
Площадь прихожей (м2)
2,60
Высота потолка (м)
2,70
Площадь балкона (м2)
1,80
Тип санузла
раздельный
Площадь санузла (м2)
4,40
3-комн. 76,50 м2
Отделка
Мы выполнили за вас основные грязные работы:
выстроили ровные межкомнатные стены, в которых уже предусмотрены кабель-каналы, а также специальные отверстия для монтажа электрической разводки;
установили двухкамерные стеклопакеты и металлическую входную дверь;
Выполнили стяжку пола;
Завели слаботочные сети в квартиру до коробки;
Выполнили сантехническую разводку и установили приборы учета воды.
В каждой квартире установлены приборы учета тепла, позволяющие контролировать как температуру в помещении, так и суммы по счетам за отопление.
Предлагаем воспользоваться услугами наших партнеров и заказать отделку "под ключ". При этом вы сможете включить стоимость ремонта в ипотечный платеж.
выстроили ровные межкомнатные стены, в которых уже предусмотрены кабель-каналы, а также специальные отверстия для монтажа электрической разводки;
установили двухкамерные стеклопакеты и металлическую входную дверь;
Выполнили стяжку пола;
Завели слаботочные сети в квартиру до коробки;
Выполнили сантехническую разводку и установили приборы учета воды.
В каждой квартире установлены приборы учета тепла, позволяющие контролировать как температуру в помещении, так и суммы по счетам за отопление.
Предлагаем воспользоваться услугами наших партнеров и заказать отделку "под ключ". При этом вы сможете включить стоимость ремонта в ипотечный платеж.
Похожие квартиры
3-комн. 69,60 м2
ЖК «Галактика», Подъезд 1
6 264 000 ₽
3-комн. 76,50 м2
ЖК «Галактика», Подъезд 1
6 885 000 ₽
3-комн. 66,80 м2
ЖК «Галактика», Подъезд 1
6 346 000 ₽
3-комн. 76,50 м2
ЖК «Галактика», Подъезд 1
7 267 500 ₽
3-комн. 66,80 м2
ЖК «Галактика», Подъезд 1
6 346 000 ₽
3-комн. 76,50 м2
ЖК «Галактика», Подъезд 1
7 267 500 ₽