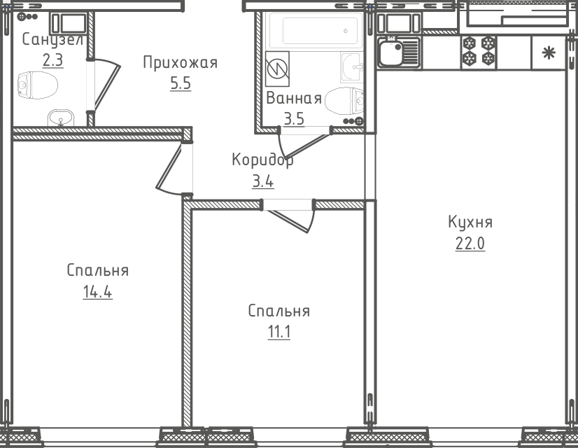
Двухкомнатная квартира №104 с видом улица. 4 этаж. Подъезд 2
2-комн. 62,20 м2
3 квартал 2029
Проект
Галактика
Корпус
Подъезд 2
Количество комнат
2
Этаж
4 из 9
Номер квартиры
104
Общая площадь (м2)
62,20
Площадь без лоджии и балкона (м2)
62,20
Жилая площадь (м2)
25,50
Площадь кухни (м2)
22,00
Площадь прихожей (м2)
3,40
Высота потолка (м)
2,70
Тип санузла
раздельный
Площадь санузла (м2)
5,80
2-комн. 62,20 м2
Отделка
Мы выполнили за вас основные грязные работы:
выстроили ровные межкомнатные стены, в которых уже предусмотрены кабель-каналы, а также специальные отверстия для монтажа электрической разводки;
установили двухкамерные стеклопакеты и металлическую входную дверь;
Выполнили стяжку пола;
Завели слаботочные сети в квартиру до коробки;
Выполнили сантехническую разводку и установили приборы учета воды.
В каждой квартире установлены приборы учета тепла, позволяющие контролировать как температуру в помещении, так и суммы по счетам за отопление.
Предлагаем воспользоваться услугами наших партнеров и заказать отделку "под ключ". При этом вы сможете включить стоимость ремонта в ипотечный платеж.
выстроили ровные межкомнатные стены, в которых уже предусмотрены кабель-каналы, а также специальные отверстия для монтажа электрической разводки;
установили двухкамерные стеклопакеты и металлическую входную дверь;
Выполнили стяжку пола;
Завели слаботочные сети в квартиру до коробки;
Выполнили сантехническую разводку и установили приборы учета воды.
В каждой квартире установлены приборы учета тепла, позволяющие контролировать как температуру в помещении, так и суммы по счетам за отопление.
Предлагаем воспользоваться услугами наших партнеров и заказать отделку "под ключ". При этом вы сможете включить стоимость ремонта в ипотечный платеж.
Похожие квартиры
2-комн. 69,00 м2
ЖК «Галактика», Подъезд 2
6 210 000 ₽
2-комн. 69,00 м2
ЖК «Галактика», Подъезд 2
6 210 000 ₽
2-комн. 58,40 м2
ЖК «Галактика», Подъезд 2
5 840 000 ₽
2-комн. 59,50 м2
ЖК «Галактика», Подъезд 2
5 950 000 ₽
2-комн. 66,30 м2
ЖК «Галактика», Подъезд 2
6 630 000 ₽
2-комн. 58,40 м2
ЖК «Галактика», Подъезд 2
5 840 000 ₽